この物件の特長
新築
築浅
築15年未満
リノベーション済
鉄骨
建築中
居住中
即内覧可
一棟マンション
2026/01/04 更新【横浜市栄区笠間五丁目 B棟】新築一棟マンション
販売価格32,450万円
利回り:5.66%
年間収入:18,396,000円
月間収入:1,533,000円
物件の詳細情報
| 物件名 | 【横浜市栄区笠間五丁目 B棟】新築一棟マンション | ||
|---|---|---|---|
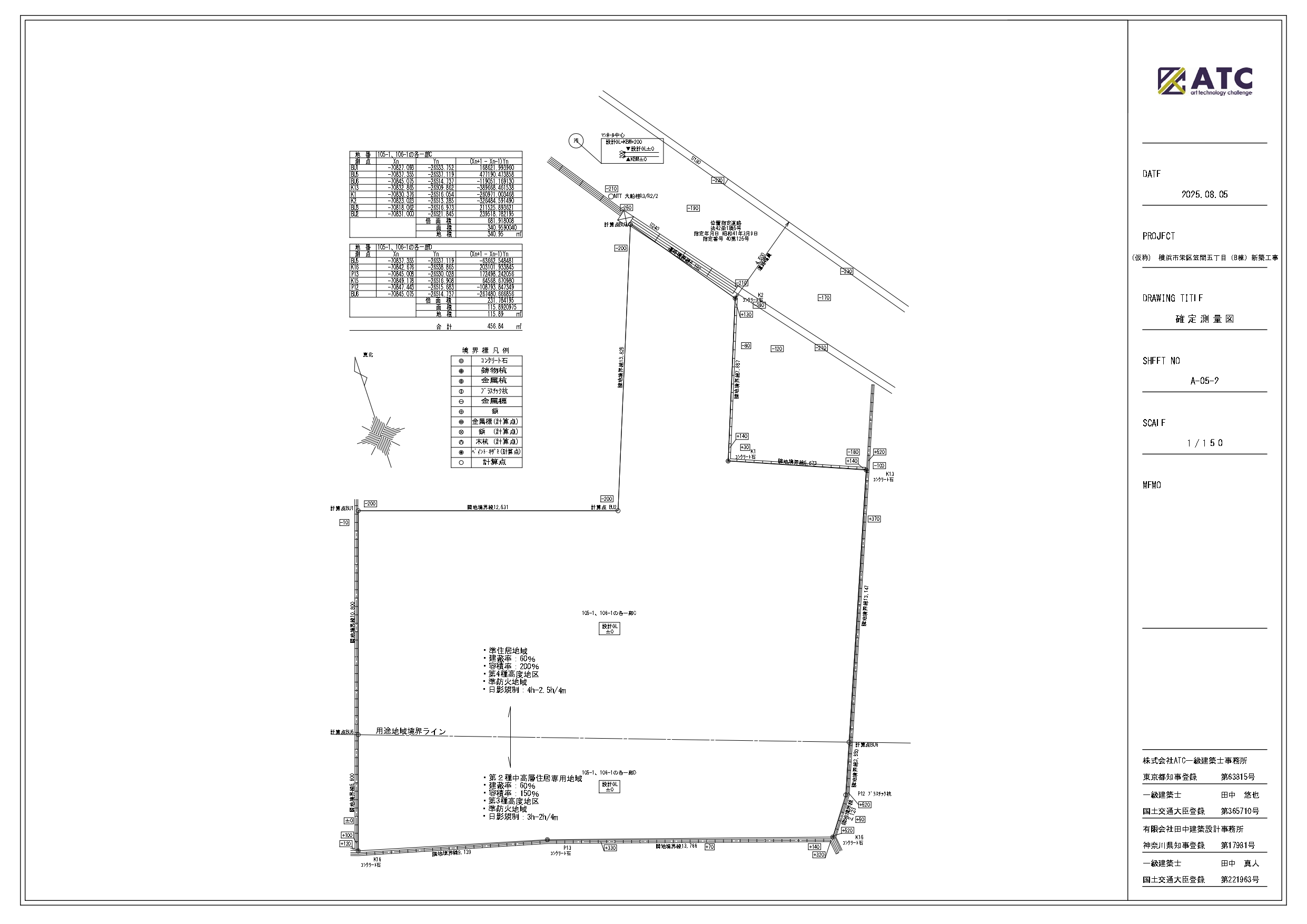
| 所在地 | 神奈川県横浜市栄区笠間五丁目内(住居表示未定) | ||
| 交通 | JR根岸線・JR横浜線 「本郷台」駅 徒歩17分 JR各線・湘南モノレール江ノ島線 「大船」駅 徒歩17分 | ||
| 販売価格 | 324,500,000円 | 利回り | 5.66% |
| 年間収入 | 18,396,000円 | 月間収入 | 1,533,000円 |
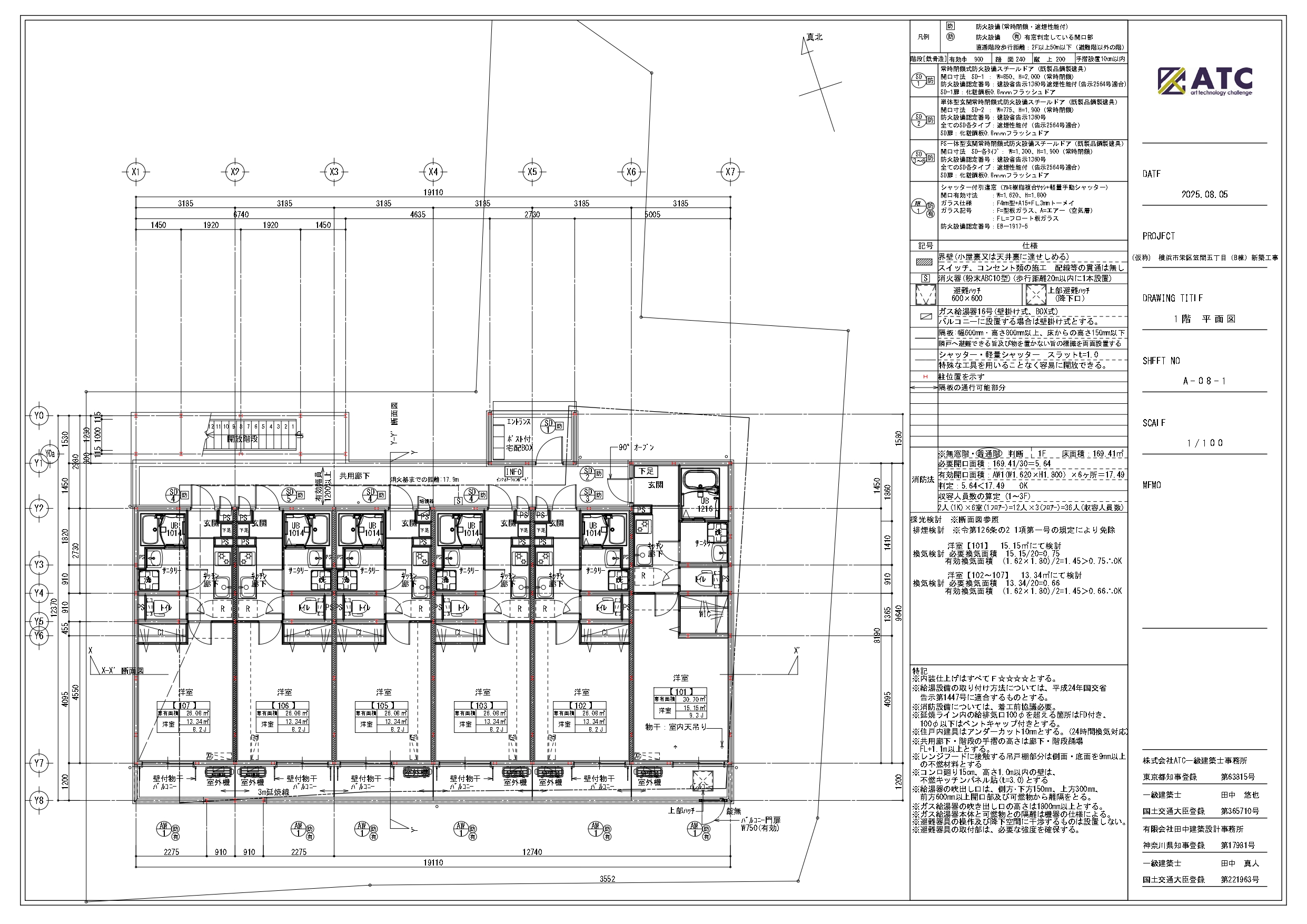
| 築年月 | 2026年02月 (築0年) | 建物構造 | 鉄骨 |
| 階数 | 3階建て | 総戸数 | 18戸 |
| 延床面積 | 493.84㎡ | 土地面積 | 456.84㎡ |
| 土地権利 | 所有権 | 取引態様 | 売主 |
| 私道負担面積 | あり(分筆登記申請予定) | 間取り | 1K |
| 駐車場 | 無 | 建蔽率 | - |
| 容積率 | - | 接道状況 | 接道/接面/幅員:北側公道 / 約6.1m / 約4.5m |
| 地目 | 宅地 | 都市計画区域 | - |
| 用途地域 | - | 国土法届出 | - |
| 高度地区 | 防火規制 | - | |
| 現況 | 未完成 | 引渡可能年月 | 2026年02月 |
| 建築確認番号 | 第FBC-建確済25-0211号 | 管理番号 | - |
| 次回更新予定日 | - | 更新日 | 2026/01/04 |
| 注意事項 | - | ||
| 物件名 | 【横浜市栄区笠間五丁目 B棟】新築一棟マンション |
|---|---|
| 所在地 | 神奈川県横浜市栄区笠間五丁目内(住居表示未定) |
| 交通 | JR根岸線・JR横浜線 「本郷台」駅 徒歩17分 JR各線・湘南モノレール江ノ島線 「大船」駅 徒歩17分 |
| 販売価格 | 324,500,000円 |
| 利回り | 5.66% |
| 年間収入 | 18,396,000円 |
| 月間収入 | 1,533,000円 |
| 築年月 | 2026年02月 (築0年) |
| 建物構造 | 鉄骨 |
| 階数 | 3階建て |
| 総戸数 | 18戸 |
| 延床面積 | 493.84㎡ |
| 土地面積 | 456.84㎡ |
| 土地権利 | 所有権 |
| 取引態様 | 売主 |
| 私道負担面積 | あり(分筆登記申請予定) |
| 間取り | 1K |
| 駐車場 | 無 |
| 建蔽率 | - |
| 容積率 | - |
| 接道状況 | 接道/接面/幅員:北側公道 / 約6.1m / 約4.5m |
| 地目 | 宅地 |
| 都市計画区域 | - |
| 用途地域 | - |
| 国土法届出 | - |
| 高度地区 | |
| 防火規制 | - |
| 現況 | 未完成 |
| 引渡可能年月 | 2026年02月 |
| 建築確認番号 | 第FBC-建確済25-0211号 |
| 管理番号 | - |
| 次回更新予定日 | - |
| 更新日 | 2026/01/04 |
| 注意事項 | - |
不動産会社情報
| 会社名 | 株式会社ATC | ||
|---|---|---|---|
| 所在地 | 東京都中央区銀座1-9-13 プライム銀座柳通りビル4F | ||
| 電話番号 | 07050245139 | 営業時間 | 9:30〜18:30 |
| 定休日 | 火水 | 担当者 | 宮内 |
| 免許 | - | 不動産会社PR | - |
| 会社名 | 株式会社ATC |
|---|---|
| 所在地 | 東京都中央区銀座1-9-13 プライム銀座柳通りビル4F |
| 電話番号 | 07050245139 |
| 営業時間 | 9:30〜18:30 |
| 定休日 | 火水 |
| 担当者 | 宮内 |
| 免許 | - |
| 不動産会社PR | - |